Регби
Дыня – это не только фрукт, но и главный атрибут тренировки любого регбиста
По порядку рассчитайся!
Цель игры
Передавая мяч друг другу руками (только назад) или ногами (в любом направлении), приземлить его в зачетном поле или забить в ворота соперника. За это команда получает определенное количество очков. Побеждает команда, набравшая больше очков.
Правила регби разрешают вести жесткую силовую борьбу, соответственно, от игроков требуются хорошая физическая и функциональная подготовленность, выносливость, подвижность, сила, наличие борцовских навыков и определенных морально-волевых качеств.
Состав команды
От каждой команды на поле одновременно выступают 15 человек (на игру первоначально бывает заявлено от 18 до 22 игроков): 8 нападающих и 7 защитников, у каждого из которых свое игровое амплуа.
В регби возможно два вида замен – постоянная и временная: игрок, получивший травму, может покинуть поле, чтобы получить медицинскую помощь. В это время на поле выходит запасной игрок. Все замены производятся только с разрешения полевого судьи в момент остановки игры.
Правила игры кратко
Спортивная командная игра с овальным мячом весом до 425 г и длиной 28–29 см. Она проводится на прямоугольной площадке длиной до 100 м и шириной до 68 м. За каждой линией ворот находится зачетные поля шириной 12–22 м. Ворота для игры в регби Н-образной формы, расстояния между вертикальными штангами 5 м, высота – 6 м, поперечная перекладина находится на расстоянии не ниже 3 м от земли.
Команда для игры в регби состоит из 15 спортсменов, которые должны быть хорошо подготовлены физически: они должны не только быстро бегать, хорошо владеть ударами по мячу ногой и бросками рукой, но и быть готовыми к непосредственному единоборству с соперником, так как в регби допускаются захваты за плечи, за пояс и за ноги. Одежда регбиста – трикотажная рубашка из очень прочного материала, называемая регбийкой, шорты, на ногах – бутсы и гетры. Продолжительность матча – 90 мин. (два тайма по 45 мин. с 5-минутным перерывом). Задача каждой команды – приземлить мяч рукой в зачетном поле противника либо забить мяч ногой в ворота при условии, что мяч пройдет над перекладиной. Существует специальная система подсчета очков в регби. Команде начисляется 5 очков за приземления мяча в зачетном поле противника, и при этом предоставляется право пробить по воротам из игрового поля с любой точки напротив места приземления мяча. При удачной реализации попытки команда получает еще 2 очка. Если же между перекладиной ворот команда забивает мяч после предоставления ей розыгрыша штрафного, команда получает 3 очка.
В правилах игры оговорено, что мяч можно нести в руках неограниченное время, вести ногами в любом направлении, а передавать руками только назад или параллельно линии ворот. Команда делится на игроков «схватки» и «веера» (8 игроков «схватки» и 7 – «веера»). Игра начинается с начального удара.
Из наиболее распространенных элементов игры чаще всего применяются «коридор» и «схватка». «Коридор» выстраивается из игроков «схватки» обеих команд при вводе мяча из-за боковой линии. «Коридор» назначается судьей, когда мяч выходит в аут. От 2 до 8 игроков из каждой команды встают в линию, друг напротив друга, расстояние между ними – 1,5 м; один из игроков команды, не нарушившей правило, бросает мяч между двумя линиями игроков, которые должны, подпрыгнув, отыграть мяч на свою сторону. При незначительных нарушениях правил (передача рукой вперед, плохой розыгрыш начального удара и некоторые другие) назначается «схватка». В «схватке» участвуют по 7–8 игроков от каждой команды, которые, наклонившись и плотно сцепившись между собой в три линии, стараются вывести ногой мяч, вбрасываемый внутрь «схватки». Регби – игра, полная разнообразных комбинаций.
Нарушение правил
Правилами запрещается:
- – игроку, бегущему за мячом, атаковать или толкать соперника, также бегущего за мячом;
- – игроку, находящемуся в положении «вне игры», намеренно бежать или стоять перед партнером, владеющим мячом, мешая тем самым сопернику;
- – любому игроку, овладевшему мячом после того, как тот вышел из схватки, рака, мола или коридора, пытаться проложить себе путь через впереди стоящих партнеров;
- – наносить удар сопернику рукой;
- – цеплять сзади или бить ногой по ногам соперника, ставить ему подножку или наступать на лежащего соперника;
- – атаковать или блокировать соперника, только что ударившего по мячу ногой и не бегущего вслед за мячом;
- – держать, толкать, атаковать, блокировать или захватывать соперника, не владеющего мячом, за исключением игры в раке, моле или схватке.
Родственные регби виды спорта – регби-13, американский футбол, австралийский футбол и пр.
Правила. Первые официальные правила регби появились во второй половине 19 в. Основные положения остаются неизменны, но время от времени в них вносятся определенные уточнения, призванные сделать игру более динамичной и зрелищной.
Регби-7. Разновидность классического регби, зародившаяся в Шотландии. В настоящее время культивируется почти в 100 странах. Первый официальный международный турнир по регби-7 прошел в 1973. В настоящее время в календарь международных соревнований входят Кубок мира, Мировая серия и др. Регби-7 входил в программу ОИ-2002 – как показательная дисциплина. В команде 7 игроков (3 нападающих и 4 защитника), а также трое запасных. Продолжительность матча – 2 тайма по 7 мин с минутным перерывом между ними (в финале – 2 тайма по 10 мин с перерывом между таймами в 2 мин). При необходимости назначается дополнительное время – не более 5 мин. В случае, если одной из команд удастся при этом добиться успеха, игра тут же прекращается. В целом правила регби-7 схожи с правилами «большого» регби. Есть и менее распространенная версия традиционной игры – регби-10.
Регби-13. Суть игры аналогична классическому регби. Очки присуждаются за реализованные попытки и забитые голы, правда цена их меньше: попытка – 4 очка, штрафной – 2, а дроп-гол – 1 очко. Мяч немного меньше, чем в «обычном» регби. От каждой команды на поле выступают 13 игроков (разрешаются две замены в ходе игры). В схватке участвует не по 8, а по 6 спортсменов. В случае выхода мяча в аут формируется не коридор, а тоже схватка. В отличие от классического, в регби-13 нет и таких понятий, как рак и мол. Если игрок, владеющий мячом, в процессе борьбы оказался на земле, он, по правилам, может подняться и, стоя лицом к лицу с соперником, попытаться отпасовать мяч ногой партнерам.
- В чем состоит суть игры?
- Задача игроков - пройти от своей линии ворот до линии ворот противника, используя удары по мячу ногой, пас руками назад, «винты», скорость и мощь. В регби есть возможность выплеснуть негатив и получить адреналин.
- Регби и регбилиг - в чем разница?
- Это исторически сложившиеся разные виды спорта, но имеющие одни корни. Регби классическое или Регби union - это 15 игроков. Регбилиг, иначе регби-13 - это 13 игроков и немного другие правила игры.
- Что запрещается в регби?
- Запрещается руками передавать мяч вперед, нельзя делать подножки, бить руками. Приветствуются хорошие захваты, отбирание мяча хитростью и ловкостью. Не стоит забывать, что в регби играют против того, у кого находится мяч, и может случиться так, что 15 человек атакуют одного. Но при хорошей защите, умелых действиях игроки стараются играть один на один. Здесь очень важна взаимопомощь, когда товарищ по игре готов подставить свое плечо для твоей защиты.
– Нет, конечно, можно держать мяч в ногах и водиться по всему полю, убегая от соперников, но ведь мяч в форме дыни. Никто не знает, куда он отскочит.
– Начнем с простых вещей. Вставайте в линию и передавайте друг другу мяч. Делайте это так: представьте, что вы подбрасываете песок. Слишком высоко бросите – не долетит. Слишком широко руки расставите – тоже не годится.
– Давайте сначала вы поймете, как нужно обороняться и атаковать. Потом уже будем думать о комбинациях.
Общие правила
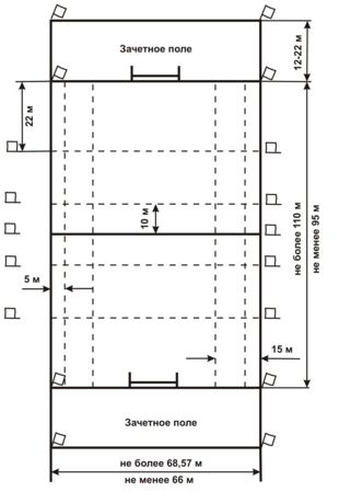
Игровая площадь состоит из игрового и зачетного поля. Игровое поле ограничено боковыми линиями и линиями ворот (сами линии не являются частью поля). Зачетное поле – площадь между линией ворот, линией «мертвого мяча» и боковыми линиями зачетного поля. (Линия ворот является частью зачетного поля, линия «мертвого мяча» и боковые линии – нет.) Длина зачетного поля: 10–22 м, ширина – не более 70 м.
На поле обозначаются также (параллельно линиям ворот) сплошные линии 22 м, ограничивающие площадь 22 м, и центральная (средняя) линия, которая делит поле пополам. По периметру площадки устанавливаются флажки, также обозначающие зоны и линии поля. Прерывистыми линиями обозначаются 10-метровые расстояния от центральной линии поля и 5-метровые – от боковых линий. Для игры в регби подходит и футбольное поле, но с другой разметкой.
Площадка. Представляет собой прямоугольник не более 100 м в длину и 70 м – в ширину, с травяным (реже – земляным или песчаным) покрытием. Игровая площадь состоит из игрового и зачетного поля. Игровое поле ограничено боковыми линиями и линиями ворот (сами линии не являются частью поля). Зачетное поле – площадь между линией ворот, линией «мертвого мяча» и боковыми линиями зачетного поля. (Линия ворот является частью зачетного поля, линия «мертвого мяча» и боковые линии – нет.) Длина зачетного поля: 10–22 м, ширина – не более 70 м. На поле обозначаются также (параллельно линиям ворот) сплошные линии 22 м, ограничивающие площадь 22 м, и центральная (средняя) линия, которая делит поле пополам. По периметру площадки устанавливаются флажки, также обозначающие зоны и линии поля. Прерывистыми линиями обозначаются 10-метровые расстояния от центральной линии поля и 5-метровые – от боковых линий.
Ворота. Имеют Н-образную форму и устанавливаются на линии ворот. Высота стоек – не менее 3,4 м, расстояние между ними – 5,6 м, расстояние от поверхности поля до перекладины – 3 м.
Мяч. Имеет овальную форму. Его поверхность может быть покрыта специальным составом, отталкивающим грязь, что позволяет лучше удерживать мяч в руках. Изготавливается из кожи. Длина мяча по линии – 280–300 мм, продольная окружность – 740–770 мм, поперечная окружность – 580–620 мм, вес – 410–460 г, давление внутри мяча (в начале игры) должно составлять 0,67–0,7 кг/см2.
Время игры. Два тайма по 40 мин. каждый (не считая добавленного, или компенсированного, времени, а также – при необходимости – дополнительного времени) с перерывом между ними 5–10 мин. После перерыва команды меняются воротами.
Составы команд. От каждой команды на поле одновременно выступают 15 человек (на игру заявляется от 18 до 22 игроков): 8 нападающих и 7 защитников, у каждого из которых свое игровое амплуа. В регби возможны два вида замен – постоянная и временная: игрок, получивший травму, может временно покинуть поле для получения медицинской помощи. На время его отсутствия на поле выпускается запасной игрок. Все замены производятся только с разрешения полевого судьи в момент остановки в игре.
Экипировка. Включает шорты, майку, носки и бутсы, а также защитное снаряжение (наколенники, налокотники, щитки для голени, перчатки без пальцев, прокладки для плеч, защитное приспособление для рта, шлем). На всех частях экипировки должен стоять знак соответствия стандарту IRB (Международная федерация регби). Игроки в «нестандартной» экипировке к матчу не допускаются. Правилами также запрещено надевать жесткие и острые предметы, зажимы, кольца, застежки-молнии, винты, драгоценные украшения и пр. аксессуары, которые в процессе игры могут нанести травму самому спортсмену, его партнерам или соперникам.
Способы ведения игры. Игра начинается начальным ударом по мячу с центра поля, после чего любой игрок может:
- ловить (подбирать) мяч и бежать с ним;
- передавать, бросать или отбивать мяч другому игроку;
- бить или иным способом продвигать мяч ногой;
- захватывать, толкать или атаковать плечом соперника, владеющего мячом;
- падать на мяч;
- принимать участие в схватке, раке, моле и коридоре;
- приземлять мяч в зачетном поле.
Начальный удар
- удар по мячу с земли, выполняемый с середины центральной линии поля командой, которая получила право начать игру, или противоположной командой при возобновлении игры после перерыва между таймами, а также удар с отскока на центральной линии защищающейся командой после того, как соперник набрал очки.
Начисление очков. Происходит несколькими способами: за попытку, за гол, забитый после попытки, за гол со штрафного, за дроп-гол.
Попытка. Игрок заносит мяч в зачетное поле соперника и приземляет его там, т.е. касается мячом земли или падает на мяч. Удачная попытка оценивается в 5 очков. В случае, если попытка могла быть реализована, но этого не произошло из-за грубой игры противника, назначается «штрафная попытка» с места нарушения (она может принести атакующей команде 5 очков).
Удар по воротам после попытки. Команда, сделавшая попытку, получает право на удар по воротам. Он выполняется с воображаемой линии, перпендикулярной линии ворот и проходящей через ту ее точку, в которой попытка была реализована. Реализация удара (мяч должен пролететь над перекладиной между стойками ворот) оценивается в 2 очка. Таким образом, команда в одной атаке может набрать 7 очков.
Гол со штрафного удара. Право на штрафной предоставляется команде, против которой были нарушены правила. Гол со штрафного удара оценивается в 3 очка.
Дроп-гол. Успешный удар с отскока приносит 3 очка (по правилам регби, гол, забитый ударом «с руки», не засчитывается: регбист должен обязательно ударить его об землю).
Общие положения
Цель игры: две команды по пятнадцать, десять или семь игроков, каждая, должны, передвигаясь с мячом в руках, передавая мяч, нанося удары по мячу ногой и приземляя мяч, набрать как можно больше очков. Команда, набравшая большее количество очков, становится победителем в игре. Правила игры содержат все, что необходимо для того, чтобы игра была честной и корректной. Долг судьи – справедливо применять правила игры без любого изменения или упущения.
Нарушение правил
Блокировка. Правилами запрещается:
- игроку, бегущему за мячом, атаковать или толкать соперника, также бегущего за мячом;
- игроку, находящемуся в положении «вне игры», намеренно бежать или стоять перед партнером по команде, владеющим мячом, мешая тем самым сопернику;
- любому игроку, овладевшему мячом после того, как тот вышел из схватки, рака, мола или коридора, пытаться проложить себе путь через игроков своей команды, стоящих впереди него;
- любому игроку, который является внешним игроком в схватке, препятствовать сопернику перемещаться вокруг схватки.
Подобные действия расцениваются как блокировка и наказываются штрафным ударом с места нарушения.
Нечестная игра. Под нечестной игрой подразумевается умышленное нарушение любого пункта правил. Например, спортсмен намеренно выбрасывает мяч за боковую линию, затягивает время и т.д. Такие нарушения наказываются штрафным ударом или предупреждением. При повторном предупреждении игрок удаляется с поля.
Некорректное поведение, опасная игра. Правилами запрещается:
- наносить удар сопернику рукой;
- цеплять сзади или бить ногой по ногам соперника, ставить подножку или наступать на лежащего соперника;
- производить недозволенные захваты;
- атаковать или блокировать соперника, только что пробившего по мячу ногой и не бегущего вслед за мячом;
- держать, толкать, атаковать, блокировать или захватывать соперника, не владеющего мячом, за исключением игры в раке, моле или схватке;
- находясь в первой линии схватки, входить в соперника с ударом, а также умышленно отрывать соперника от земли или выдавливать его из схватки;
- преднамеренно заваливать схватку, рак или мол.
Подобные действия расцениваются как опасная игра. Игрок, допустивший опасную игру или некорректное поведение по отношению к сопернику (в любой форме), может быть удален с поля или предупрежден судьей о том, что будет удален при повторном нарушении. В дополнение к предупреждению (удалению) назначается штрафной удар с места нарушения.
Судья не должен останавливать игру после нарушения, если невиновная в нарушении команда имеет преимущество (территориальное или тактическое) – за исключением некоторых оговоренных правилами ситуаций.
Свободный и штрафной удары. Пробиваются с места, где было допущено нарушение, или с любого места за меткой на воображаемой линии, проходящей через нее перпендикулярно линии ворот. В случае, если место для пробития штрафного (свободного) удара оказывается ближе 5 м к линии ворот провинившейся команды, оно должно быть перенесено на расстояние 5 м от линии ворот. Удар выполняется с рук, с отскока, с земли любой частью ноги ниже колена, но не коленом и не пяткой.
При пробитии свободного (в отличие от штрафного) удара мяч не может быть направлен непосредственно в ворота – включая удар с отскока. Если пробивающий штрафной намерен бить по воротам, игроки обороняющейся команды должны оставаться пассивными вплоть до момента удара. При пробитии свободного игроки команды-соперницы, находящиеся в положении «в игре», могут выполнять набегание (с момента, как бьющий начнет разбег), пытаясь предотвратить выполнение удара. Если им это удастся, новый удар не назначается, а в месте метки назначается схватка, мяч в которую вводят игроки защищающейся команды.
Удар по воротам должен быть выполнен в течение 1 мин с того момента, как бьющий обозначил свое намерение – появлением на поле специальной подставки или песка, при помощи которого делается метка на поле. В случае превышения «минутного» лимита удар отменяется и в месте метки назначается схватка, мяч в которую вводит противоположная команда.
Игроки команды, получившей право на удар, должны до нанесения удара находиться за линией мяча. Если кто-то не успел вернуться за линию мяча из-за быстрого выполнения удара, это не считается нарушением, но они не имеют права вступать в игру, пока не окажутся в положении «в игре». Бьющий может отправить мяч в любом направлении и сыграть им снова без ограничений. Игроки команды, допустившей нарушение, должны выйти на (или за) воображаемую линию, параллельную линии ворот и отстоящую на 10 м от места выполнения удара (или свою линию ворот, если она оказывается ближе к метке). Они не должны препятствовать выполнению удара (намеренно удерживать или отбрасывать мяч и пр.). Подобные нарушения наказываются переносом места удара на 10 м вперед или на линию 5 м от ворот (в зависимости от того, какая из них ближе). Если в результате выполнения штрафного в зачетном поле мяч вышел за его боковую линию или линию мертвого мяча, или же игрок обороняющейся команды сделал мяч «мертвым» до того, как он пересек линию ворот, – в 5 м от линии ворот назначается схватка, мяч в которую вводит атакующая команда.
Команда, невиновная в нарушении, может вместо штрафного (свободного) удара выбрать альтернативную схватку с места, откуда должен был бы пробиваться удар, вводить мяч в схватку будет она.
За любое нарушение со стороны команды, пробивающей штрафной (свободный), на месте метки назначается схватка, мяч в которую вводит команда-соперница. Положение «вне игры». Термин «вне игры» означает, что спортсмен оказался в позиции, в которой он не имеет права участвовать в игре, – в противном случае его команда наказывается штрафным ударом с места нарушения.
Различают положение «вне игры» в открытой игре; в схватке; в раке и моле; в коридоре. «Вне игры» в открытой игре означает, что спортсмен оказался впереди мяча, которым последний раз играл его партнер по команде.
Для полузащитников схватки линия «вне игры» проходит через мяч в схватке – параллельно линии ворот. Для всех остальных игроков подобная линия, тоже параллельная линии ворот, проходит через стопу последнего игрока своей команды.
Игроки, не принимающие участия в схватке и не являющиеся полузащитниками схватки, попадают в положение «вне игры», если пересекают или остаются впереди своей линии «вне игры». Линией «вне игры» в раке и моле считается воображаемая линия, параллельная линии ворот и проходящая через стопу последнего игрока. У каждой команды своя линия «вне игры». Игроки, не участвующие в раке (моле), должны присоединиться к раку (молу), либо немедленно выйти за линию «вне игры».
При формировании коридора для каждой команды определяются две линии «вне игры», проходящие параллельно линии ворот. Игрок, участвующий в розыгрыше коридора, считается в положении «вне игры», если он – до того, как мяч коснется игрока или земли, – умышленно заступит за линию вбрасывания. Игрок, вбрасывающий мяч, должен оставаться в пределах 5 м от боковой линии или присоединиться к коридору после того, как мяч был вброшен. Игрок, не участвующий в коридоре, считается в положении «вне игры», если он до окончания коридора заступил за линию «вне игры».
Стандартные положения и комбинации в регби
К их числу относятся: схватка; рак; мол; коридор и аут; чистая ловля (метка); захват; а также свободный и штрафной удары.
Схватка. Формируется на игровом поле для возобновления игры после нарушения правил или остановки в игре. От каждой команды в схватке участвует по 8 игроков: обхватив друг друга руками и сомкнувшись с соперниками, они выстраиваются в три линии. Создается туннель, в который полузащитник схватки вбрасывает мяч так, чтобы игроки первой линии обеих команд могли завладеть мячом, зацепив его ногой.
Схватка формируется на месте нарушения или остановки игры в пределах игрового поля, но не ближе 5 м от боковой линии и от линии ворот. Мяч вводит в игру команда, невиновная в нарушении или находящаяся в атаке.
Средняя линия схватки – воображаемая линия, проходящая непосредственно под линией, образованной плечами игроков первых линий обеих команд. Средний игрок первой линии называется «хукером». Игроки по обеим сторонам от хукера – столбы. Левый столб №1 (со свободной головой) и правый столб №3 (c прижатой головой). Два игрока второй линии, толкающие столбов и хукера – замки. Игроки, связывающие вторую и третью линию – фланкеры. Игрок третьей линии, толкающий замков и фланкеров, – №8.
Схватка считается оконченной, если мяч вышел из нее в любом направлении (за исключением туннеля).
Игроки не имеют права умышленно заваливать схватку, становиться на колени в схватке и пытаться овладеть мячом в схватке любой частью тела, кроме стопы и голени. Игрокам запрещается возвращать мяч в схватку, падать на мяч, выходящий из схватки, не являясь игроком первой линии, играть мячом, пока тот находится в коридоре, и т.д. Подобные нарушения наказываются штрафным или свободным ударом.
Рак. Фаза игры, когда один или несколько игроков от каждой команды, стоя на ногах и находясь в физическом контакте, группируются вокруг мяча, находящегося на земле между ними в пределах игрового поля. В таком положении открытая игра прекращается. Игроки, участвующие в раке, пытаются ногами отыграть или сохранить мяч, не нарушая правил. Игроки, формирующие, присоединяющиеся или участвующие в раке, не должны опускать головы и плечи ниже своих бедер. Игрок, присоединяющийся к раку, должен одной рукой обхватить туловище партнера, уже участвующего в раке.
Играя в раке, спортсмены должны оставаться на ногах. Они не имеют права намеренно падать или вставать на колени. Подобные действия классифицируются как опасная игра. Игрок не должен намеренно заваливать рак (опасная игра), запрыгивать на него, умышленно наступать на лежащих на земле игроков и пр. Нельзя также возвращать мяч в рак, брать руками мяч, находящийся в раке, падать на мяч, выходящий из рака. Нарушения наказываются штрафным или свободным ударом. Рак считается успешно завершенным, если мяч выходит из него или оказывается за линией ворот. В случае неуспешного завершения рака (т.е. когда в раке невозможно играть) судья назначает схватку (но он должен предоставить достаточное время для выхода мяча из рака). Мяч в схватку вводит команда, которая двигалась вперед непосредственно перед остановкой игры. Если ни одна из команд не имела продвижения вперед или судья не в состоянии определить, какая из команд двигалась вперед перед остановкой, мяч должна вводить команда, двигавшаяся вперед непосредственно перед формированием рака. Если движения вперед не было ни у одной команда, то мяч в схватку вводит атакующая команда.
Мол. Образуется, когда один или несколько игроков от каждой команды, стоя на ногах, находясь в физическом контакте и двигаясь в направлении ворот, группируются вокруг игрока, владеющего мячом. Открытая игра заканчивается. Мол может быть сформирован только в пределах поля. В нем должны участвовать минимум три игрока: игрок, владеющий мячом, и еще по одному игроку от каждой команды.
Голова и плечи игрока, входящего в мол, не должны располагаться ниже его бедер. Игрок, присоединяющийся к молу, должен «завязаться» в нем, а не просто находиться сбоку от него. Игроки в моле должны стараться оставаться на ногах. Игроку с мячом разрешается упасть на землю, – при условии, что он не освободится от мяча. Запрещается намеренно заваливать мол и запрыгивать на него. Игроки не должны пытаться вытащить соперника из мола. Пока мяч находится в моле, игрок не должен вводить в заблуждение соперников, сообщая о том, что мяч вышел из мола.
Мол считается успешно оконченным, если мяч падает на землю или игрок с мячом выходят из мола. Если мяч в моле оказывается за линией ворот, мол также считается завершенным. Игра может быть остановлена и назначена схватка, если мол становится неподвижным и более 5 сек нет продвижения вперед, а также при разрушении мола (но не в результате грубой игры). Если мяч находится в движении и судья видит его, он должен предоставить разумное время для выхода мяча из мола. Если игрок, владеющий мячом в моле, падает на землю (или игрок стоит на одном или обоих коленях или сидит на земле), также должна быть назначена схватка. Мяч в схватку вводит команда, которая не владела мячом непосредственно перед формированием мола. Если судья не в состоянии определить, какая из команд владела мячом, то мяч должна вводить команда, двигавшаяся вперед непосредственно перед остановкой игры или атакующая команда, если движения вперед не было.
Аут и коридор. Мяч считается вышедшим в аут, когда:
- непосредственно после удара ногой он оказывается за пределами поля, не падая на игровую площадь и не касаясь игрока или судьи;
- не находясь в руках игрока, он касается боковой линии поля или земли (любого объекта) за боковой линией;
- находясь в руках игрока, мяч (или игрок, несущий его) касается боковой линии или земли за ней;
- игрок, ловящий его, наступает ногой на боковую линию или на землю за ней.
Если игрок, стоящий обеими ногами на игровой площадке, ловит мяч, уже перешедший за боковую линию поля, мяч не считается в ауте. Игрок может отразить или отбить мяч на игровую площадку, при условии, что он не сыграет при этом вперед. Если игрок поймал мяч в прыжке, то он должен приземлиться обеими ногами на игровую площадку. Игрок, находящийся в ауте, может ударить по мячу ногой или подыграть рукой, при условии, что мяч не пересек боковую линию, но он не должен держать мяч в руках. После того, как мяч покинул поле, он может быть введен в игру либо быстрым вбрасыванием, либо вбрасыванием в построенный коридор. Выполняя быстрое вбрасывание, игрок должен находиться в любом месте за пределами игрового поля между местом, где мяч коснулся или пересек боковую линию, и своей линией ворот. Мяч должен быть вброшен прямо вдоль линии вбрасывания (воображаемой линии, проходящей под прямым углом к боковой линии через место, с которого вбрасывается мяч), – так чтобы он первый раз коснулся земли или игрока не ближе 5 м от боковой линии.
Если мяч не был введен до построения коридора, то вбрасывание производится в коридор. Коридор начинается в тот момент, когда мяч покидает руки вбрасывающего игрока, и считается законченным, когда мяч или игрок, владеющий мячом, покинул коридор.
Игроки, выстраивающиеся на линиях, параллельных линии вбрасывания, формируют коридор. В каждой команде может быть один игрок, готовый поймать мяч, когда игроки, формирующие коридор, передадут или пнут мяч назад. Кроме игроков, формирующих коридор, в коридоре участвует хукер – игрок, вбрасывающий мяч, и его непосредственный оппонент, а также два игрока, готовых поймать мяч из коридора. Все остальные игроки, не участвующие в коридоре, должны, пока коридор не закончен, находиться не ближе 10 м от линии вбрасывания или за своей линией ворот. Нарушения правил ввода мяча после аута наказываются свободным или штрафным ударами с линии 15 м (линии параллельной боковой и проходящей в 15 м от нее).
Метка. Считается, что игрок выполняет чистую ловлю или метку, когда, находясь в своей 22-метровой зоне или в своем зачетном поле, он чисто ловит мяч непосредственно после удара ногой соперника (за исключением начального удара). Одновременно с ловлей мяча игрок должен крикнуть «Метка!». Чистая ловля считается выполненной, даже если перед этим мяч коснется стойки или перекладины ворот.
После выполнения чистой ловли назначается свободный удар. Захват. Ситуация, когда игрок, владеющий мячом на игровом поле, удерживается одним или несколькими соперниками так, что он, будучи удерживаемым, падает на землю или мяч касается земли.
Захваченный игрок должен немедленно отдать мяч и встать на ноги. Игрок, который захватил соперника и, удерживая его, упал с ним на землю, должен немедленно освободить захваченного игрока и встать на ноги. Он не должен играть мячом до тех пор, пока не будет стоять на ногах. Нельзя препятствовать захваченному игроку отдавать пас или освобождаться от мяча, вырывать мяч из рук захваченного игрока или пытаться поднять мяч до того, как он будет освобожден захваченным игроком, в положении лежа на земле после захвата играть или препятствовать мячу любым способом, захватывать или пытаться захватить соперника, владеющего мячом, преднамеренно падать на лежащего на земле игрока с мячом, стоя на ногах, препятствовать или мешать сопернику, не находящемуся в непосредственной близости (т.е. в пределах 1 м) от мяча, находясь в непосредственной близости от мяча в положении лежа на земле, мешать сопернику в овладении мячом.
Нарушения правил при выполнении захвата наказываются штрафным ударом. Судейство. Осуществляется полевым судьей и двумя боковыми судьями. Судья в поле контролирует время, счет игры, соблюдение правил. Во время матча только он является экспертом по оценке возникающих на поле игровых ситуаций. Его решения обязательны для игроков.
Для обозначения начала матча (второго тайма), окончания первого тайма или матча, удачной реализации попытки, для остановки игры после нарушения правил и т.д. полевой судья подает сигналы свистком и специальными жестами.
Боковые судьи подчиняются полевому судье. О своих решениях (например, если мяч покинул поле) боковой судья сигнализирует флагом. Во время выполнения удара по воротам, реализации попытки или штрафного удара боковые судьи должны помогать полевому судье, сигнализируя ему о результате.
На трибуне стадиона для игры в регби
Мы на стадионе. Привычное травяное поле совсем как футбольное (рис. 1). Только за воротами газон продолжается еще метров десять-двадцать.
Это зачетные поля, или «города» (см. рис. 3). Они — цель, которую надо достичь атакующим. Да и сами ворота, в отличие от футбольных, напоминающих букву «П», имеют форму буквы «Н» с вытянутыми высоко вверх стойками. До перекладины ворот от земли три метра, между стойками — пять метров шестьдесят пять сантиметров (рис. 2).
Пока мы рассматриваем поле, появились судьи. Как и в футболе, их трое: судья в поле и два боковых судьи — помощники. Полевой судья кладет на центр мяч овальной формы, напоминающий дыню, и свистком вызывает команды. Они выбегают на поле и выстраиваются в шеренги по обе стороны от судейской бригады. Регбисты сначала приветствуют зрителей трибуны, к которой обращены лицом, затем — противоположной. После этого, как и в футболе, судья с капитанами бросает жребий для выбора сторон и начала игры.
На игроках знакомая, как у футболистов, экипировка (недаром же футбол и регби самые близкие родственники) : футболки обязательно с длинными рукавами, трусы, гетры со щитками под ними, бутсы. Но это только издалека. Если вы познакомитесь с формой регбиста поближе, то сразу увидите отличия. Материал рубашек регбистов — регбиек плотнее — на плечах, груди, у локтей и предплечий двойной простеганный слой. Вместо трусов — плотные шорты с резинкой и тесьмой. Со стороны бедер в шортах могут находиться вшитые или вставленные изнутри в специальные карманы поролоновые прокладки. Бутсы футбольного типа не у всех. У нападающих — игроков схватки они более закрытые, а у игроков, выполняющих удары по воротам, носок может быть более плоским, срезанным и укрепленным, благодаря чему увеличивается сила и точность удара. Однако делать так необязательно. Многие игроки обходятся футбольными бутсами. Это устраивает и бьющих штрафные удары игроков, которые выполняют удар не носком, а подъемом.
Но вот команды распределились на своих сторонах поля. В каждой команде по пятнадцать человек. Теперь мы видим их расстановку. К тому краю поля, куда будет направлен мяч после начального удара, сместились нападающие. Их чаще называют игроками схватки. Почему — увидим позже. Таких игроков в современной команде восемь. Несмотря на перемещения во время игры, они всегда держатся близко друг от друга — борются за мяч, «добывают» его, разыгрывают комбинации с применением групповой силовой борьбы (схватки, «молы» и т. п.), создают выгодные ситуации для передачи мяча так называемым трехчетвертным для завершения атаки. Они также участвуют в розыгрыше бокового вбрасывания (аута). Все это мы увидим по ходу игры.
Непосредственно за схваткой находится полузащитник схватки — номер 9, управляющий ее игрой и получающий от нее мяч для дальнейшего розыгрыша. Недалеко от него, чуть позади, — другой полузащитник — номер 10. Это главный диспетчер команды, распределяющий мячи, направляющий атаку в нужную сторону и в нужный момент или вводящий в заблуждение противника. Это мозг команды. По характеру действий этот игрок больше всего похож на футбольного полузащитника, диспетчера. Несколько позади «десятки», углом в глубь своей половины поля, расположились четыре трехчетвертных игрока защиты — их еще называют просто «трехчетвертные». Иногда регбисты для краткости называют их «четвертями». Они создают основной заслон прорывающемуся противнику, а также завершают атаки своей команды. Так что диапазон игры у них очень широкий и беговая нагрузка, пожалуй, самая большая в команде. Их часто поддерживают так называемые крыльевые схватки — крайние в последней линии схватки нападающие.
Наконец, позади всех маячит оплот обороны — единственный в команде защитник — иногда его называют замыкающим. Он, как вратарь в футболе, последним удерживает пограничную полосу. Но, в отличие от футбола, эта полоса проходит не только между боковыми стойками ворот, но и простирается через всю ширину поля. Это линия зачетного поля, за которую в «город» соперник стремится занести и приземлить мяч.
Но вот и свисток к началу игры. Полузащитник «белых» устанавливает мяч на середине центральной линии в вертикальном положении. Мяч после удара полетит по крутой траектории, и игроки нападения успеют прийти к той точке, куда он опустится… Но что это? Судья остановил игру и назначает в центре поля схватку. Это потому, что мяч после начального удара не пересек линию, расположенную в десяти метрах впереди от центральной, — посмотрите схему разметки поля на рисунке. Судья одной рукой указывает место, где должна быть построена схватка, а другой показывает в сторону команды, которая будет вводить в нее мяч. Нападающие устанавливают схватку.
В первой ее линии, обхватив друг друга за спины, становятся по три игрока от каждой команды. Это очень плотные и крепкие игроки. Вторые линии команды строят по-разному. У «белых» в ней два рослых и сильных игрока, а у «черных» — четыре. Причем двое «внутренних» игроков такие же рослые. В третьей линии у «белых» трое, у «черных» — один игрок. Таким образом, у «белых» усилие схватки больше сконцентрировано в основном направлении — по центру, зато у «черных» — более короткая схватка. Но как строить схватку — внутреннее дело команды.
Полузащитник схватки «черных» вбрасывает мяч между упершимися друг в друга игроками первых линий точно посредине. Общим усилием каждая из сторон стремится оттеснить противника, завладеть мячом и ногами передать его назад своему полузащитнику. А это непросто. Для того чтобы научить соединять усилия каждого из игроков и в единый момент превращать их в мощную монолитную силу, необходима тщательная и упорная совместная тренировка всех игроков схватки в течение длительного времени. В хорошей схватке игроки чувствуют себя как родные братья. Такое же чувство локтя и дружеские отношения нужны этим игрокам и во время игры в поле.
Но вот «черные», оттеснив соперников, сумели отыграть мяч своему «девятке», и тот, не мешкая, в красивом полете передает его длинным броском своему партнеру-полузащитнику — номеру 10. Все это он делает настолько быстро, что полузащитник «белых» не успевает атаковать его. Быстрота первой передачи во многом определяет успех атаки.
Десятый номер «черных», получив мяч, резко меняет направление атаки. Как по мановению его невидимой дирижерской палочки, в том же направлении за ним устремляются трехчетвертные. Они двигаются вперед, сохраняя диагональное построение: ближайший к мячу впереди, следующий за ним несколько позади, последующий — еще глубже. Дело в том, что в регби можно передавать мяч руками только назад или в направлении, параллельном линиям ворот. Если игрок сыграет мячом вперед, назначается схватка, а вводить мяч в нее будет соперник. Поэтому игрок, получивший пас, выходит вперед, а отдавший мяч притормаживает. И если идет серия таких передач с выходом игрока, получающего мяч вперед, то создается впечатление, что диагональ из игроков разворачивается наподобие веера.
Передача мяча руками вперед — довольно частая ошибка. Особенно когда играют команды не очень высокой квалификации. Отсюда и самое частое наказание в игре — схватка. Вот и сейчас игрок «черных» очень хотел ускорить атаку, передал мяч партнеру несколько вперед. Схватка на месте нарушения. «Белые», вводя мяч, выигрывают, но их «девятка» замешкался, и полузащитник схватки «черных» успел перекрыть ему возможность для передачи. Закрытый и с другого края набегающими «черными», полузащитник «белых» выбивает ногой мяч в аут. Ногой в регби можно посылать мяч в любом направлении.
Итак, аут. Мяч будет вводиться в игру из-за боковой линии не с места выхода его за пределы поля, а напротив того места, с которого бил игрок. Это объясняется просто: перед выходом в аут мяч не коснулся игрового поля. Если бы это было так, то вбрасывание мяча производили бы с места его выхода за линию.
С места выхода мяча вбрасывание производят и в том случае, если он был выбит защищающимися из зоны между линией своего зачетного поля и 22-метровой линией. И вот— введение мяча из-за боковой линии. Оно не похоже на футбольное. Игрок не вбрасывает мяч партнеру. Правда, в отдельных случаях, когда игроки выбившей мяч команды не успели добежать до места выхода мяча в аут, можно вбросить его партнеру — почти по-футбольному — или даже самому себе. Надо только, чтобы мяч после вбрасывания пролетел пять метров в глубину (см. на рис. 1 пунктирную линию, параллельную боковой).
Но обычно при боковом вбрасывании игроки нападения обеих команд выстраиваются друг против друга, образуя полуметровый «коридор». В этот «коридор» и вбрасывает мяч игрок команды, не виновной в выходе мяча в аут. За вброшенный мяч в прыжке борются игроки противоборствующих сторон, не переходя линии вбрасывания. Это немного напоминает борьбу при введении мяча в игру или при отскакивании мяча от щита в баскетболе. Команда, вбрасывающая мяч, обычно использует различные заранее отработанные хитрости для выигрыша мяча без нарушения правил.
Вот и сейчас игрок «черных» бросил мяч из аута туда, где его высокий партнер (обычно игрок второй линии схватки), зная заранее, что мяч будет направлен ему, и заняв позицию напротив менее высокого или прыгучего соперника, вовремя выпрыгнул и завладел мячом. Он мог его отыграть своему полузащитнику под номером 9, который располагается рядом с «коридором», чтобы развить атаку. Но он поймал мяч в воздухе, развернулся лицом к своим, а при приземлении его крепко обхватили партнеры, стоявшие справа и слева от него. Тут же к ним присоединились еще несколько игроков из «коридора». Образовалась произвольная, то есть не назначаемая судьей, схватка — «мол». В ней, как и во всякой схватке, действует правило: противник, переступивший воображаемую линию, проходящую поперек поля, через ноги последнего игрока своей схватки, попадает в положение вне игры. А это влечет за собой штрафной удар — непосредственную опасность для ворот.
Теперь «белые» должны организовать сопротивление «молу» «черных», иначе он может пройти до самого зачетного поля. И они тоже выстраивают своих игроков подобным образом и останавливают «мол». Произвольная схватка может выстраиваться и над лежащим мячом. Тогда она называется «рак», но правило вне игры в ней действует так же.
Пока «белые» организовывали сопротивление, стягивая игроков и освобождая тем самым другие зоны поля, «черные» установили «веер» из своих трехчетвертных! а их десятка зорко зафиксировал бреши в построениях противника. И в этот момент мяч из «мола» мгновенно и по возможности скрытно передается девятке «черных». Тот так же быстро, чтобы «белые» не успели рассредоточиться и закрыть бреши, передал его своему диспетчеру — номеру 10. А тот повел в атаку своих трехчетвертных. Финтом он уходит от соперника и уже, кажется, недосягаем для него.
И вдруг в броске, подобно футбольному вратарю, обойденный игрок летит вслед игроку с мячом. Еще в полете он крепко захватывает бедра бегущего и, падая, сбивает его — это захват, один из надежнейших приемов защиты и увлекательнейших эпизодов игры. Он требует мужества, смелости как от того, кто проводит его, так и от того, кто знает, что к нему будет применен захват. Умение делать захваты требует особой тренировки, как и умение падать при захвате без повреждений. Захваты бывают разными — верхний, средний, нижний, спереди, сбоку, вдогонку.
Захват — это борцовский прием, только выполняемый на большой скорости, во время бега. Не случайно регби всегда пользовалось большой популярностью среди борцов; борцы часто и успешно выступали в командах регбистов. Например, одним из сильнейших довоенных регбистов был чемпион СССР по классической борьбе Григорий Пыльнов, в годы Великой Отечественной войны посмертно удостоенный звания Героя Советского Союза. Несколько лет назад в команде мастеров московского «Автомобилиста» играл будущий чемпион мира по классической борьбе Н. Артюхин, а в сборной страны и в тбилисском «Локомотиве» — бронзовый призер первенства страны по борьбе дзюдо В. Лилуашвили (ныне выступает в кутаисском «Мшенебели»).
Но мы еще вернемся к захватам, а сейчас — снова внимание на поле. В этот момент мы слышим свисток судьи. В чем дело? Оказывается, захваченный игрок, упав, не освободился от мяча. А это опасно — может возникнуть свалка, игроки могут получить травмы. Поэтому играть лежа, как говорят регбисты, правила запрещают. Подбегает судья, встает на место нарушения, обращаясь лицом в сторону ворот команды, которая должна произвести штрафной удар, и поднимает вверх руку. Если бы штрафной удар был назначен в футболе, судья повернулся бы в противоположную сторону и указал рукой в сторону ворот провинившейся команды.
В регби мяч должен быть пробит точно с места, указанного судьей. В противном случае судья назначит в этом месте схватку и вводить в нее мяч будет противник. Штрафной удар можно пробивать с рук, с земли, с отскока (что это такое, мы еще узнаем). Вот игрок «черных» сыграл мячом со штрафного себе и тут же передал его партнеру. Все правильно.
Но мы снова слышим свисток судьи. Это игроки «белых» не поспешили отойти на положенные десять метров. Помните в футболе правило девяти метров? Игроки противника при штрафном ударе должны отойти на девять метров. И вот судья долго и утомительно уговаривает «стенку» отодвинуться на нужное расстояние, сам отодвигает ее, а время идет. В регби же существует суровое, но хорошее правило: не успели (или не захотели) отойти на десять метров — штрафной удар переносится на десять метров ближе к их воротам. А в регби это еще опаснее, чем в футболе: ведь регбийные ворота беззащитны — в них нет вратаря.
Теперь игрок «черных» спокойно устанавливает мяч на землю и показывает судье, что он будет бить по воротам. Судья дает сигнал своим помощникам, те устремляются к воротам и располагаются за их стойками, каждый со своей стороны. Удар — мяч проходит над перекладиной между стойками. Футбольный болельщик схватился бы за голову. Но на трибунах аплодисменты. В регбийные ворота мяч должен пройти именно над перекладиной, на любой высоте. Об этом сигнализируют помощники судьи, поднимая свои флажки (или не поднимая, если мяч не прошел). На табло появляются цифры 3:0. Значит, забитый штрафной дает три очка.
«Белые» начинают с центра. И вскоре снова наказываются штрафным — теперь за положение вне игры. В регби, в отличие от футбола, положение вне игры может быть в любой точке поля. Игрок, находящийся ближе к воротам противника, чем мяч, оказывается в положении вне игры и не может участвовать в игре.
Так что в регби, как мы видим, и в схватках, и в игре в поле мяч обычно определяет положение игрока. Если игрок оказался в положении вне игры, он должен немедленно стремиться выйти из этого положения, не мешая игре. Но вот истекли сорок минут игры. Тайм окончился, а судья не дает свисток на перерыв.
Свисток на окончание половины (или конца) встречи будет дан лишь тогда, когда по истечении времени игры мяч покинет поле или игра будет остановлена из-за нарушения правил. Перерыв в регби также отличается от футбольного. Ни судьи (они остаются в центре поля с мячом), ни команды не имеют права покидать пределы поля. Действительно, может ли воин покинуть поле битвы даже во время короткой передышки, тем более удобно развалиться в креслах или на диванах?
И вот игроки подходят к боковой линии, каждая команда—со своей стороны поля, как во время минутных перерывов в баскетболе или волейболе. Здесь тренеры дают им указания, вносят поправки в план ведения игры. Здесь же массажисты и врач оказывают необходимую помощь, взбадривают игроков, проводят короткий интенсивный массаж и т. п. В общем, это напоминает перерыв перед дополнительным временем в кубковой футбольной встрече. Перерыв длится всего пять минут, и судья вновь вызывает команды на заключительные сорок минут матча. Игра началась атаками «белых». Видимо, их тренер заметил слабое место у команды соперника и дал указания игрокам и капитану команды.
Вот «белые» красиво и быстро разыграли «веер» в правый край. Теперь их крайний трехчетвертной с мячом впереди всех. Но он оттеснен «черными» к самой кромке поля. А там ему уже не дадут пройти. И тогда он, не доходя до атакующего его игрока «черных», делает резкий рывок влево, в глубь поля. За ним устремляется игрок в черной форме. И кажется, что «белый» идет в самую гущу «черных». Но это же нелепо и безрассудно! А тем временем его партнер, тонко уловив этот маневр, идет ему за спину вправо. Неожиданно получив мяч за спиной партнера, он оказывается на его прежнем, но уже свободном от «черных» месте. Этот прием, получивший у регбистов название «крест», очень зрелищен. Мяч неожиданно меняет направление движения.
Защитник бросается на игрока с мячом, пытаясь сделать боковой захват, но вытянутой свободной рукой тот отражает нападение противника. Этот прием у регбистов называется «ручка». И вот уже по освободившемуся «коридору» игрок «белых» врывается в зачетное поле «черных» и в стремительном броске приземляет там мяч. Бросок с мячом в зачетное поле был необходим, чтобы опередить бегущих наперерез противников. Приземлением мяча в зачетном поле «белые» заработали четыре очка и получили право на удар по воротам с любого расстояния, но обязательно напротив места приземления. Это называется «реализация попытки», а само приземление — «попытка».
Игрок «белых» пробил над планкой между стоек ворот и приплюсовал к четырем еще два очка. Счет стал 6:3 в пользу «белых». Дальше игра шла с переменным успехом. Схватки чередовались с «коридорами», «молы» с «веерами», захваты со штрафными ударами… Теперь, зная основные положения игры, смотреть стало гораздо интереснее. Но в конце игры полузащитник «черных», находясь метрах в тридцати от ворот противника, вдруг бросил мяч перед собой и в момент отскока от земли ударил по нему ногой. Мяч прошел в ворота над перекладиной. Судья указал на центр. Этот удар называют ударом с отскока, в футболе — с полулёта (или хавволей, поскольку происхождение обеих игр английское). Таким ударом можно поразить ворота непосредственно с игры. Это дает три очка и называется дроп-гол.
Итак, в регби можно добиваться результата:
- приземлением мяча в зачетном поле — пять очков,
- приземлением мяча с реализацией «попытки» — семь очков,
- штрафным ударом — три очка,
- дроп-гол дает тоже три очка.
А что касается сегодняшней игры, то до финального свистка счет не изменился. Когда команды уходили с поля, мы увидели необычный способ проявления взаимного уважения между игроками, принятый в регби. Сначала команда «черных» (они были хозяевами поля, а игра закончилась вничью), разделившись пополам, выстроила у выхода с поля «коридор», через который под их аплодисменты прошла команда «белых». Затем «белые» разделились и в свою очередь построили такой же «коридор» и аплодисментами проводили «черных». У регбистов это называется «коридор почета». Если бы игра не окончилась вничью, то первыми «коридор почета» построили бы побежденные.
Дополнительно
Ссылки












